Rif: 617
CHIOGGIA
VENEZIA
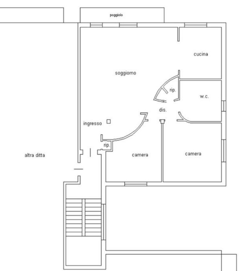
Marina Immobiliare propone in vendita un appartamento elegante e ben rifinito a Sottomarina, situato al secondo piano di una palazzina di tre piani totali. L'immobile, di circa 100 mq, rappresenta una soluzione ideale per chi è alla ricerca di una casa accogliente, curata nei dettagli e pronta da vivere.
L'ingresso si apre su una luminosa zona living, caratterizzata da pavimenti in vero parquet e impreziosita dalla presenza di una stufa a pellet, elemento che aggiunge comfort e atmosfera all'ambiente, rendendolo perfetto per momenti di relax e vita quotidiana. La cucina, disposta ad angolo, è separata da una porta in vetro che consente di mantenere la continuità visiva con la zona giorno, evitando però la dispersione di odori.
Due ampie porte finestre si aprono sul balcone esposto a sud, offrendo un'ottima illuminazione alla zona giorno per tutto l'arco della giornata. La cucina gode di due ulteriori finestre che favoriscono una ventilazione naturale ideale, soprattutto durante la preparazione dei pasti, e contribuiscono a mantenere l'ambiente sempre luminoso e arioso.
Una porta a scomparsa conduce alla zona notte, dove il disimpegno collega le varie stanze con ordine e funzionalità. Il bagno è finestrato e dotato di un ampio box doccia, realizzato con materiali di qualità. La camera matrimoniale è spaziosa e dotata di una pratica cabina armadio, mentre la seconda camera si presta perfettamente come cameretta o studio. Un comodo ripostiglio completa la zona notte. Con possibilità di acquisto comprensivo di arredo.
Al piano terra è presente un garage di proprietà con portellone elettrico, comodo per il parcheggio diretto o come spazio aggiuntivo per bici, moto o ripostiglio attrezzato, facilmente accessibile in ogni stagione.
La posizione dell'immobile è ottimamente servita: scuole, negozi, fermate dell'autobus e altri servizi si trovano nelle immediate vicinanze, rendendo questa abitazione perfetta per chi desidera vivere in un contesto ordinato, ben collegato e già pronto all'uso.
Contattaci per ricevere maggiori informazioni e per fissare una visita.
L'ingresso si apre su una luminosa zona living, caratterizzata da pavimenti in vero parquet e impreziosita dalla presenza di una stufa a pellet, elemento che aggiunge comfort e atmosfera all'ambiente, rendendolo perfetto per momenti di relax e vita quotidiana. La cucina, disposta ad angolo, è separata da una porta in vetro che consente di mantenere la continuità visiva con la zona giorno, evitando però la dispersione di odori.
Due ampie porte finestre si aprono sul balcone esposto a sud, offrendo un'ottima illuminazione alla zona giorno per tutto l'arco della giornata. La cucina gode di due ulteriori finestre che favoriscono una ventilazione naturale ideale, soprattutto durante la preparazione dei pasti, e contribuiscono a mantenere l'ambiente sempre luminoso e arioso.
Una porta a scomparsa conduce alla zona notte, dove il disimpegno collega le varie stanze con ordine e funzionalità. Il bagno è finestrato e dotato di un ampio box doccia, realizzato con materiali di qualità. La camera matrimoniale è spaziosa e dotata di una pratica cabina armadio, mentre la seconda camera si presta perfettamente come cameretta o studio. Un comodo ripostiglio completa la zona notte. Con possibilità di acquisto comprensivo di arredo.
Al piano terra è presente un garage di proprietà con portellone elettrico, comodo per il parcheggio diretto o come spazio aggiuntivo per bici, moto o ripostiglio attrezzato, facilmente accessibile in ogni stagione.
La posizione dell'immobile è ottimamente servita: scuole, negozi, fermate dell'autobus e altri servizi si trovano nelle immediate vicinanze, rendendo questa abitazione perfetta per chi desidera vivere in un contesto ordinato, ben collegato e già pronto all'uso.
Contattaci per ricevere maggiori informazioni e per fissare una visita.
Consistenze
| Descrizione | Superficie | Sup. comm. |
|---|---|---|
| Principali | ||
| Immobile - 2° piano | 106 Mq | 106 Mqc |
| Box/Garage - piano terra | 16 Mq | 8 Mqc |
| Totale | 114 Mqc | |






